Te renoveren 3 slpk. woning met garage en uitweg
Rapaertstraat 70, 8310 Brugge Assebroek
Ref. 7206912
Beschrijving
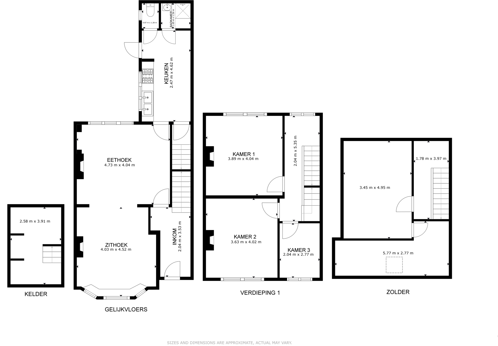
Dit is je kans om een karaktervolle woning om te vormen tot jouw thuis. Je start met een stevig canvas: een gesloten bebouwing op 238 m² met zeldzame troef — een uitweg achteraan naar de Sint-Trudostraat waar je eigen garage staat. Binnen geniet je van een ruime leefruimte, afzonderlijke keuken, afzonderlijk toilet en bijgebouwen op het gelijkvloers. Boven vind je op de eerste verdieping twee volwaardige slaapkamers en een extra kamer (ideaal als bureau/dressing/badkamer). Via de vaste trap bereik je de tweede verdieping met een derde slaapkamer en een praktische zolderruimte. Handige indeling, mooie perceelbreedte, vlotte bereikbaarheid — hier renoveer je op jouw tempo en volgens jouw smaak, mét meerwaarde in het vooruitzicht. Zin om het potentieel te zien en de ideeën te laten stromen? Interesse in deze te renoveren woning?
Uitweg achteraan met garage in de Sint-Trudostraat
Ruime leefruimte met veel mogelijkheden
3 volwaardige slaapkamers + extra kamer/bureau
Vaste trap naar de zolderverdieping
Perceel van 238 m² op centrale ligging in Assebroek
Kenmerken
3 slaapkamer(s)
1 Badkamer(s)
1 Toilet(ten)
Tuin
Parkeren
Terras
Riolering
Gas
Telefoonbekabeling
Electriciteit
Algemene Informatie
- Totale oppervlakte
- 238 m²
- Bewoonbare opp.
- 124 m²
- Bouwjaar
- 1953
- Kadastraal inkomen
- € 587
- Renovatieverplichting
- Ja
- Slaapkamer 1
- 17 m²
- Slaapkamer 2
- 16 m²
- Slaapkamer 3
- 15 m²
- Terras 1
- 20 m²
- Woonkamer
- 18 m²
- Eetkamer
- 18 m²
- Keuken
- 11 m²
- Tuin
- 238 m²
Energieprestaties
- EPC categorie

- EPC
- 785 kWh/m²
- EPC referentie
- 20250820-0003668103-RES-1
Stedenbouwkundige Informatie
- Overstromingsgevoelig
- Nee
- Elektriciteitskeuring beschikbaar
- Ja, niet conform
- Bouwvergunning
- Ja
- Voorkooprecht
- Nee
- Verkavelingsvergunning
- Nee
- Bodemattest
- Ja
- Asbestattest
- Ja, 31/08/2025
- G-score
- B
- P-score
- B
Download documenten
Ligging
De woning bevindt zich in de rustige Rapaertstraat in Assebroek, op wandelafstand van winkels, scholen en openbaar vervoer. Achteraan het perceel geniet je van een handige uitweg naar de Sint-Trudostraat, waar een private garage inbegrepen is.

























